06 12 04 66 00
6 rue Lafayette - 13001 Marseille

Appartement traversant de T3 avec balcon à Vendre à Marseille Proximité de la Plaine Marseille 13001


< Retour

Partager sur

gallery loader
Exclusivité Coup de coeur

Appartement 52 m² - 3 Pièces - Marseille 192 000


Description de l'offre Ref 74


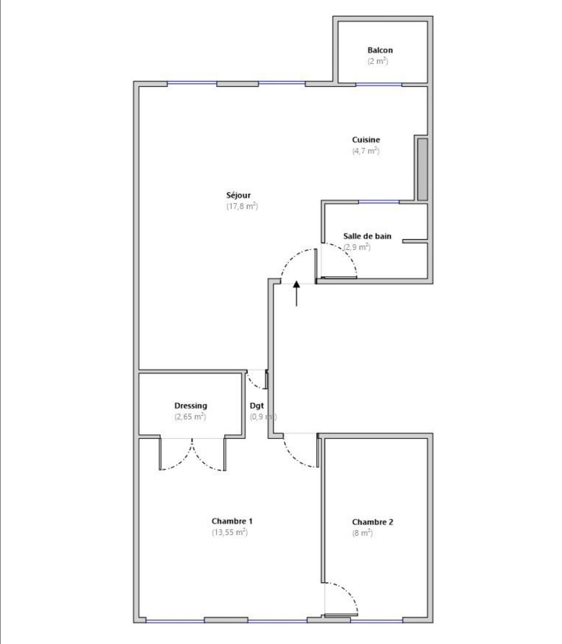
"PROMESSE DE VENTE EN COURS" L'Immobilière GHIRI vous propose EN EXCLUSIVITE un appartement traversant T3 de 50m² plus balcon à Marseille 13001 à la proximité du secteur très recherché de la Plaine. Cet appartement est situé dans un immeuble ancien sans ascenseur, et se compose d'un séjour avec cuisine ouverte et équipée donnant sur un balcon côté cour, de deux chambres dont une qui dispose d'un grand dressing et la second est idéale pour un bureau, une salle d'eau avec Water-closet, cheminées, chauffage électrique, double vitrage, tomettes au sol, en annexe une cave de 10m². nombre de lots 9 (caves comprises) charges de copropriété annuel 1148€, DPE D/B, Taxe foncière s'éleve à 920€ Contact 06.12.04.66.00 L'IMMOBILIERE GHIRI agence immobilière 13001 Marseille

Diagnostics de performance énergétique


DPE
DPE

Montant estimé des dépenses annuelles d'énergie pour un usage standard est compris entre 920 € et 1 280 € . Prix moyens des énergies indexés sur les années 2021, 2022 et 2023 (abonnements compris).

Descriptif du bien


Code postal 13001


Surface habitable (m²) 52 m²


Surface loi Carrez (m²) 51,44 m²


Nombre de chambre(s) 2


Nombre de pièces 3


Etage 3


Ascenseur NON


Vue Dégagée


Nb de salle d'eau 1


Cuisine AMERICAINE


Type de cuisine SEMI-EQUIPEE


Balcon OUI


Terrasse NON


Murs mitoyens 2


Cave OUI


Surface cave (m²) 10


Exposition SUD


Quartier Centre Ville, Chapitre, longchamg, Longchamp, Reformes


Copropriété OUI


Lot n° 4, et 9


nombre de lots 9


Quote Part annuelle des charges 1 096 €


plan de sauvegarde NON


statut du syndic pas de procédure en cours


Prix de vente 192 000 €


Les honoraires d'agence seront intégralement à la charge du vendeur  


Taxe foncière annuelle 920 €


Cette annonce vous intéresse ?


* Champs obligatoires

* : Les informations recueillies sur ce formulaire sont enregistrées dans un fichier informatisé par La Boite Immo agissant comme Sous-traitant du traitement pour la gestion de la clientèle/prospects de l'Agence / du Réseau qui reste Responsable du Traitement de vos Données personnelles. La base légale du traitement repose sur l'intérêt légitime de l'Agence / du Réseau. Elles sont conservées jusqu'à demande de suppression et sont destinées à l'Agence / au Réseau. Conformément à la loi « informatique et libertés », vous disposez des droits d’accès, de rectification, d’effacement, d’opposition, de limitation et de portabilité de vos données. Vous pouvez retirer votre consentement à tout moment en contactant directement l’Agence / Le Réseau. Consultez le site https://cnil.fr/fr pour plus d’informations sur vos droits. Si vous estimez, après avoir contacté l'Agence / le Réseau, que vos droits « Informatique et Libertés » ne sont pas respectés, vous pouvez adresser une réclamation à la CNIL. Nous vous informons de l’existence de la liste d'opposition au démarchage téléphonique « Bloctel », sur laquelle vous pouvez vous inscrire ici : https://www.bloctel.gouv.fr Dans le cadre de la protection des Données personnelles, nous vous invitons à ne pas inscrire de Données sensibles dans le champ de saisie libre.
Ce site est protégé par reCAPTCHA, les Politiques de Confidentialité et les Conditions d'Utilisation de Google s'appliquent.